string(4) "3457"

Затвор-мигалка МГ-200 в Ярославле

Версия
для печати
В наличии на складе Цена в рублях с НДС 12 000
Получите скидку
у менеджера
Цена на затвор-мигалка МГ-200 с доставкой от 12 000 рублей с НДС
Доставка ТК в г. Ярославль и по России
Безналичный расчет
  • Технические
    характеристики
  • Описание
    товара
  • Сертификаты и
    гарантии
  • Отзывы о
    продукции

Технические характеристики в Ярославле

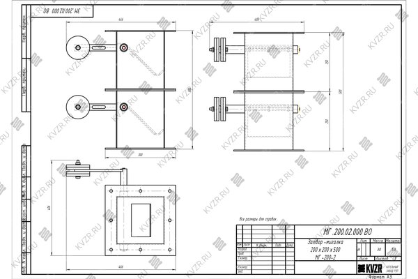
Размер входного и выходного отверстия фланцев, мм 200х200
Бренд KVZR

Затвор-мигалка МГ-200 в Ярославле

Затвор Мигалка МГ 200 - запорное устройство, которое устанавливается на пылеулавливающих устройствах - бункерах и циклонах. Применяется затвор-мигалка для автоматической выгрузки пыли из циклонов и бункеров без дополнительного участия персонала.

Затвор-мигалка представляет собой стальное изделие с отверстием квадратного сечения с одной или двумя заслонками и противовесами.  Заслонка находится в закрытом положении до того момента, пока не поступит пыль в нужном количестве. После того как на внутренней части заслонки накопится количество пыли, которое превышает массу противовеса, заслонка автоматически открывается и очищает циклон или бункер от накопившейся внутри пыли. Противовесом служит рычаг с грузом, который обеспечивает автоматическое срабатывание.

В сдвоенном затворе мигалке пыль из бункера попадает на первую закрытую заслонку. Под весом скопившейся пыли она открывается, и пыль попадает на вторую заслонку, при этом первая закрывается, исключая попадание воздуха. Расположение противовеса на рычаге второй заслонки устанавливается так, чтобы ее открытие происходило после закрытия первой, так как вторая заслонка работает с меньшей частотой, чем первая.

Устройство затвор Мигалка МГ-200 является полностью автономным и не требует подключения электроэнергии.

Купить затвор-мигалку

Для того чтобы купить затвор мигалку МГ 200 в Ярославле, вы можете сделать заявку в отдел сбыта по телефону (38-52) 29-97-41 (42), либо оформить заявку онлайн. Наши менеджеры дадут консультацию по подбору оборудования и рассчитают стоимость доставки до вашего региона и населенного пункта.

Дополнительные услуги

Сертификат и качество затвора-мигалки МГ-200

Циклоны и золоуловители производства Котельный завод "РЭП" соответствуют строгим стандартам качества и безопасности.

Циклоны имеют декларацию соответствия Техническим регламентам Таможенного союза ТР ТС 010/2011 «О безопасности машин и оборудования».

Промышленные циклоны и золоуловители включены в реестр российских производителей промышленного оборудования Минпромторг и имеют реестровую запись номер № 10729654 от 14.10.2025, сроком действия до 13.10.2028 подтверждающую российское происхождение продукции.

Сертификат для золоуловителей .jpg
Сертификат на золоуловители
Сертификат о происхождении товара форма СТ-1 .jpeg
Сертификат о происхождении товара (форма СТ-1)

Отзывы о продукции

Отзыва о товаре пока нет, будьте первыми!

Вопрос-ответ

  • Технические
    характеристики
  • Описание
    товара
  • Сертификаты и
    гарантии
  • Отзывы о
    продукции
Документы завода
  • Сертификаты завода
  • Членство в СРО
  • Аттестованная технология сварки
  • Патенты на котельное оборудование
  • Товарные знаки
Смотреть все документы
Сертификат на водогрейные котлы на твердом и жидком топливе
Сертификат на водогрейные котлы на газе и жидком топливе
Сертификат на котлы отопительные паровые КП
Сертификат на топки
Сертификат на щиты управления
Сертификат на скиповые подъемники
Сертификат на золоуловители (циклоны)
Сертификат на конвейеры скребковые
Сертификат на дробилки
Сертификат на клапаны предохранительные
Сертификат на бункер-накопитель механизированный
Сертификат на автоматику газовых горелок
Сертификат о происхождении товара форма СТ-1
Членство в СРО
Членство в СРО
Аттестованная технология сварки
Свидетельство аттестованной технологии сварки
Патент на отопительный котел
Патент на водогрейный котел
Патент на топку водогрейного котла
Патент на водогрейный газовый котел
Патент на водогрейный котел
Патент на топочное устройство твердотопливного котла
Патент на водогрейный котел
HEATEXPERT товарный знак
KVZR товарный знак
STEAMEXPERT товарный знак
Другая похожая продукция
Вы просматривали эти товары
12 000 р. Цена с НДС
Цена по запросу
7 200 р. Цена с НДС
7 100 р. Цена с НДС
background